技術規范
調試維修
聯系方式
- 聯系人:郭經理
- 傳真:010-69552656
- 電話:400-0346-119
- 電話:010-57113119
- 郵箱:506665119@qq.com
- 地址:北京通州區新華北路117
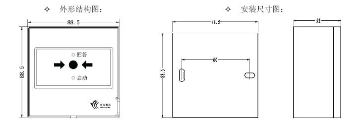
北大青鳥JBF-3333A消火栓按鈕結構特征、安裝與布線
文章來自:北大青鳥主機維修 發布時間:2017-05-15 11:05:38
1、布線施工后,通過預埋盒或使用膨脹螺栓將底座固定在墻上,安裝孔距為60mm。
2、探測總線采用ZR-RVS-2×1.5mm2雙絞線。
3、具備防水功能,安裝時必須通過螺釘緊固以達到防水效果。
4、安裝之前用編碼器對其寫入相應地址碼(1-200)。


說明:
端子1和2分別接二總線L1和L2。
端子7、8正常時為常開觸點,手動報警按鈕按下時閉合。嚴禁端子7、8連接交流信號。
如現場需要消火栓按鈕直接啟泵則按上述示意圖接線,如不需則端子7、8端不需接電源線。
使用注意事項:
通過電子編碼器對JBF-3333A消火栓按鈕編碼,將其接入JBF-11S/SF系列火災報警控制器(聯動型)回路中。
在主機操作【自動登記】項后再進行手動登記,將其改為【消鈕】類型。進入主機【安裝設置】項子菜單第7項【專線故障檢測設置】項,將所對應控制消火栓泵的專線回路【外部設備為消防泵】項設置為“1”。此狀態下消火栓泵啟動并應答后,報警主機自動發出命令點亮消火栓按鈕回答燈。
特別注意:
本消火栓按鈕內置密封膠墊,具備防水濺功能,為保證本功能的可靠性,安裝時請務必擰緊4顆緊固螺絲(包裝盒內)將消火栓按鈕主體與底座緊密結合。詳見下圖:

2、JTY-GM-GST9611點型光電感煙火災探測器的產品問題,請您點擊進入;
3、關于JTY-GM-GST9611點型光電感煙火災探測器安裝使用調試等問題,歡迎您來消防百事通的相關問題頻道與網友討論交流或咨詢管理員;
當寧消防承諾:所售商品都是正品行貨,我們將嚴格按照**三包政策,針對所售品履行保修、換貨和退貨的義務。企業客戶在提供《一般納稅人證書》、《營業執照》、《稅務登記證》、《開戶許可證》四類證件復印件后,可由當寧消防開具增值稅發票。開好后,會以快遞方式給您寄出。產品下單付款后,當寧消防物流部門會盡快發貨,十五個工作日內將貨物發出,特殊商品除外。我們還為您提供具有競爭力的商品價格和運費政策,請您放心購買!
注:因廠家會在沒有任何提前通知的情況下更改產品包裝、產地或者一些附件,本司不能確保客戶收到的貨物與當寧消防網圖片、產地、附件說明完全一致。只能確保為原廠正貨!并且保證與當時市場上同樣產品一致。若當寧消防網沒有及時更新,請大家諒解!
